Vaša povpraševanje je prazno!

Povpraševanje služi kot osnova za pripravo ponudbe. Naši strokovnjaki vsako vaše naročilo predhodno pregledajo. Na podlagi vašega povpraševanja vam pripravimo optimalno ponudbo.
01/750-85-10

Pišite nam

Imate vprašanje ali komentar?

Izpolnite obrazec ali nam pišite. Naši strokovni sodelavci vam bodo z veseljem v pomoč.

Pišite nam

Kontakt

PS, d.o.o., Logatec
Kalce 30b
1370 Logatec

Telefon
01/750-85-10

E-mail
info@ps-log.si

Zemljevid

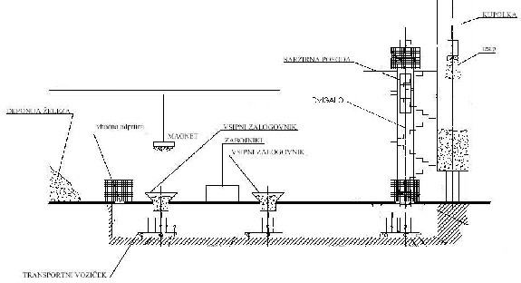
Zalaganje kupolke

Za podjetje Livar d.d. smo izdelali elektro del projekta za zalaganja kupolke. Zahteve so bile po prevozu materiala s transportnim vozičkom do dvigala, nato dvig s dvigalom do višine kupolke, premik nad kupolko in obratno. Transportni voziček se je ustavljal na štirih pozicijah. Na vsaki poziciji se v saržirno posodo vsuje material. Ko pride do dvigala, dvigalo avtomatsko zapre posodo jo dvigne in premakne do kupolke, kjer vsebino saržirne posode iztrese v kupolko. Nato se proces ponovi v obratni smeri.

 

Zastopništva

EU projekti